JR藤枝駅まで1.2km!藤枝市高岡三丁目の新しい住宅街内の物件です。
藤枝駅まで車で6分!保育園、幼稚園、公園、病院、コンビニに藤枝駅前の商業施設「Bivi藤枝」も1㎞圏内で便利な藤枝市高岡三丁目に
3SLDK、駐車スペース付きの新たな物件が誕生いたします!
高岡三丁目の物件は全部で3棟。こちらの1号地は全室5帖以上、18帖のLDKのある広さが自慢の物件です!
【藤枝市高岡三丁目1号地 推しポイント】
☆抜群の収納力!ウォークインタイプのパントリーとシューズクロークがあります!
心建設の物件でも珍しい、ウォークインタイプのシューズクロークとパントリーを採用した物件です!
靴以外にも傘やベビーカーもしまえるシューズクロークと、防災備蓄の水や食べ物をしまっておくのにぴったりなパントリーは普段の生活もいざという時も役に立つ貴重なスペースです!
☆広さが自慢の3SLDKです!
LDKは大きな窓がある18帖、2階にある4つの居室はサービスルームも含めて全部屋が5帖以上と広くて使いやすい間取りです!
全居室収納付き、7.8帖の収納はウォークインクローゼットになっているから使いやすくて便利ですよ!
☆充実の周辺環境×新しい分譲地で暮らしやすい!
藤枝駅まで1.2㎞、駅まで歩いて行ける物件はどんな町でも人気が高く希少です!
物件から500m以内にコンビニや内科医院、公園や保育園もあるから日常の様々なシーンに対応できます!
他にも、欲しい位置を考えて配置された収納スペースや高品質高機能な水回りの設備など、ここでは紹介しきれない特徴がまだまだあります!
(建築中の為、設備・仕様などは同仕様、同施工の完成物件にてご確認いただけます!)
物件見学や物件への質問は公式LINEやページ下部のフォーム、お電話からお気軽にお問い合わせください、お待ちしております🌞
完成イメージ画像
画像タップ・クリップで拡大できます。
人気のブラック×グレーの外壁を使用し、都会的でシックな印象のデザインになっています!
「注文住宅の友人の家と比べると建売はちょっと恥ずかしいかも……」とお思いのあなたにこそ見ていただきたい、
注文住宅にも負けないクオリティとデザインを両立した建売住宅です!
心建設の物件でも最大級の18帖のLDKとウォークインタイプのシューズクローク、パントリーが特徴です!
2階の居室も全室5帖以上、全室収納スペース付き。
7.8帖居室の収納スペースはウォークインクローゼットを採用。家族の衣類を分けて収納できて便利ですね!
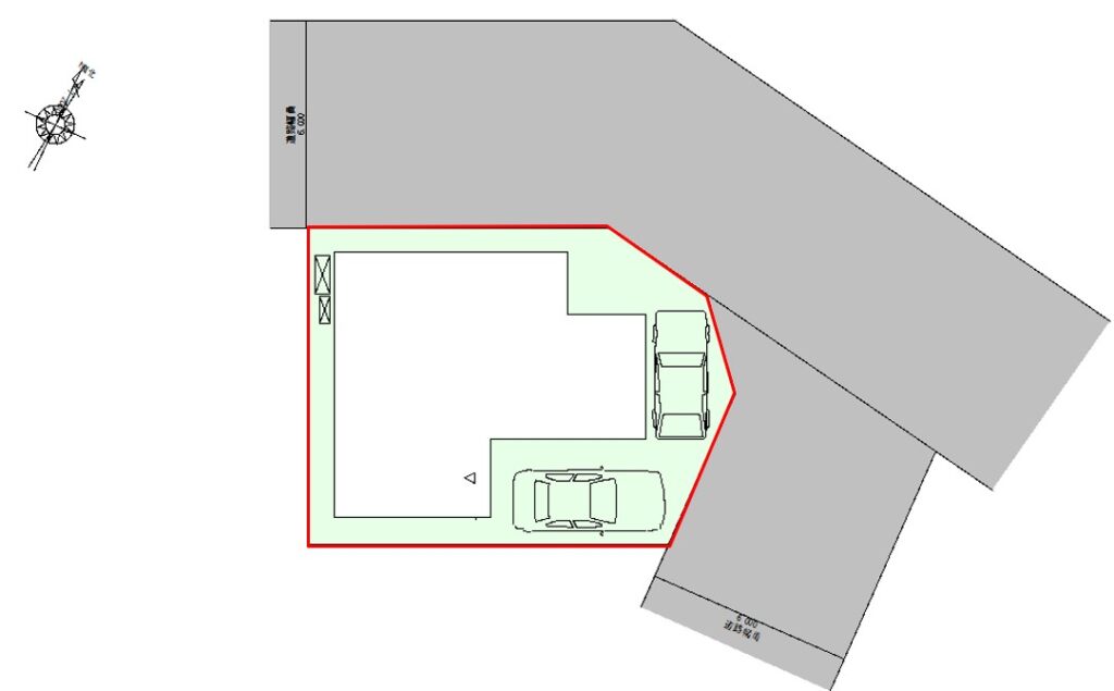
2台駐車可能、新しい住宅地の角地に位置する物件です!
食器洗浄乾燥機・IH3口コンロ・カップボード・ダストボックス・浄水器・浴室乾燥暖房機・2階洗面化粧台・高機能トイレ・室内干し・ウォークインクローゼット・シューズクロークなど…他にもいっぱいあります!完成物件でご確認いただけます。
周辺環境
- 藤枝市立高洲南小学校:1.7km(徒歩23分)
- 藤枝市立高洲中学校:2.4km(徒歩34分)
- 前島保育園:400m(徒歩5分)
- 藤枝順心高等学校附属幼稚園:600m(徒歩8分)
- ザ・ビッグ藤枝田沼店:1.3km(車で5分)
- ファミリーマート藤枝駅南通り店:450m(車で2分)
- 前島上東公園:260m(徒歩4分)
- 大岩内科医院:120m(徒歩2分)
- JR藤枝駅:1.2km(徒歩14分)
- Bivi藤枝:750m(車で3分)
- あおぞらキッズ保育園:400m(徒歩5分)
- 杏林堂薬局藤枝田沼店:600m(徒歩9分)
物件概要
- 金額 :3470万円(税込)
- 土地面積:105.20㎡(約31.82坪)
- 建物面積:106.40㎡(約32.18坪)
- 所在地 :藤枝市高岡三丁目2番23
- ナビ住所:静岡県藤枝市高岡三丁目2-4付近
- 学区 :藤枝市立高洲南小学校、高洲中学校
図面はこちらをクリック
販売資料はこちらをクリック
地図はこちらをクリック
問い合わせはこちらをクリック
↑LINEでも問合せ可能です😊
問い合わせフォーム
お急ぎの方は、お電話でお願いいたします。(受付時間 9:00~18:00) ※営業・セールスはご遠慮ください。
静岡中部エリア専用ダイヤル 0120-207-556
弊社の物件に興味をお持ちいただきありがとうございます。
お問合せいただいた内容は弊社の掲げる個人情報保護方針に沿って管理し、お客様の同意なく第三者に開示・提供することはございません。
詳細につきましては、当サイトの「プライバシーポリシー」をご参照ください。















